+49 151 15588204
info@ebe-ing.de
Menu
Navigation überspringen
Home
Über uns
Branchen
Leistungen
Kontakt
Karriere
Projekt
Home
Über uns
Projekt
MFH 105
Bauplanung
Vollbild anzeigen
MFH 105 3D-Ansicht 1
MFH 105 3D-Ansicht 2
MFH 105 3D-Ansicht 3
MFH 105 Ansicht
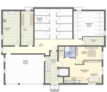
MFH 105 Grundriss KG
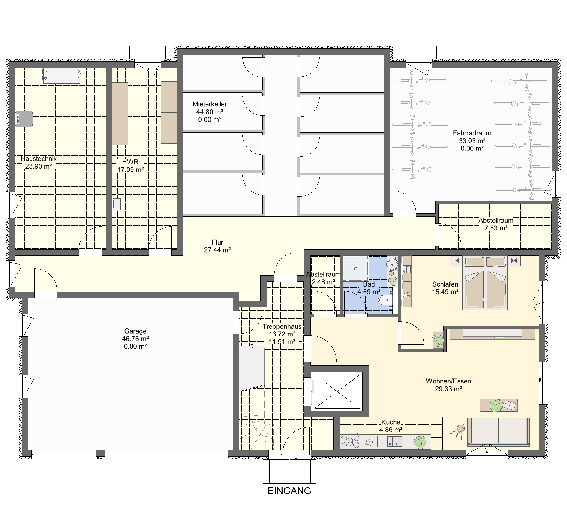
MFH 105 Grundriss EG
MFH 105 Grundriss OG 1
MFH 105 Grundriss DG
zurück zur Übersicht